help sorry i don not how put a new post but i have construct a delta pulse 2 and dont work have sound but donot detect, when i conect the bobin transistor q1 is very hot and donot detect, somebody kenmy help, and i sorry i don speak ingles but i need help thank you
Announcement
Collapse
No announcement yet.
Announcement
Collapse
No announcement yet.
Delta Pulse
Collapse
X
-
Originally posted by kt315 View Post
да вижу ... что р5 надо настроить .....но как правиль ето делать? на пример ... у меня катушка .. 40 диаметр и 3.7ом 0.550мхенр. .... поставил р5 от 500ом до 2к .... и чуика одинаково .. картина номер1 уменя с 500ом а картина номер2 с 1.8
Comment
-
Please read the forum rules -> Basic Rules of the ForumsOriginally posted by aaksts86 View Postда вижу ... что р5 надо настроить .....но как правиль ето делать? на пример ... у меня катушка .. 40 диаметр и 3.7ом 0.550мхенр. .... поставил р5 от 500ом до 2к .... и чуика одинаково .. картина номер1 уменя с 500ом а картина номер2 с 1.8
and make your posts in English.
Comment
-
GOOD EVENING TO ALL..
I changed the diode sttf1210 with byv28-200, The result is that the voltage reaches up and its 240 voltage While the diode stth1210 in 210 voltage.the byv28-200 has a smaller REVERSE RECOVERY TIME (trr) the value of is 30ns...
This can be an advantage what is your opinion..
Comment
-
I have wrote manufacturer, www.pcbsourcing.com and wait a reply, but no still answering (( this is strangely.
Comment
-
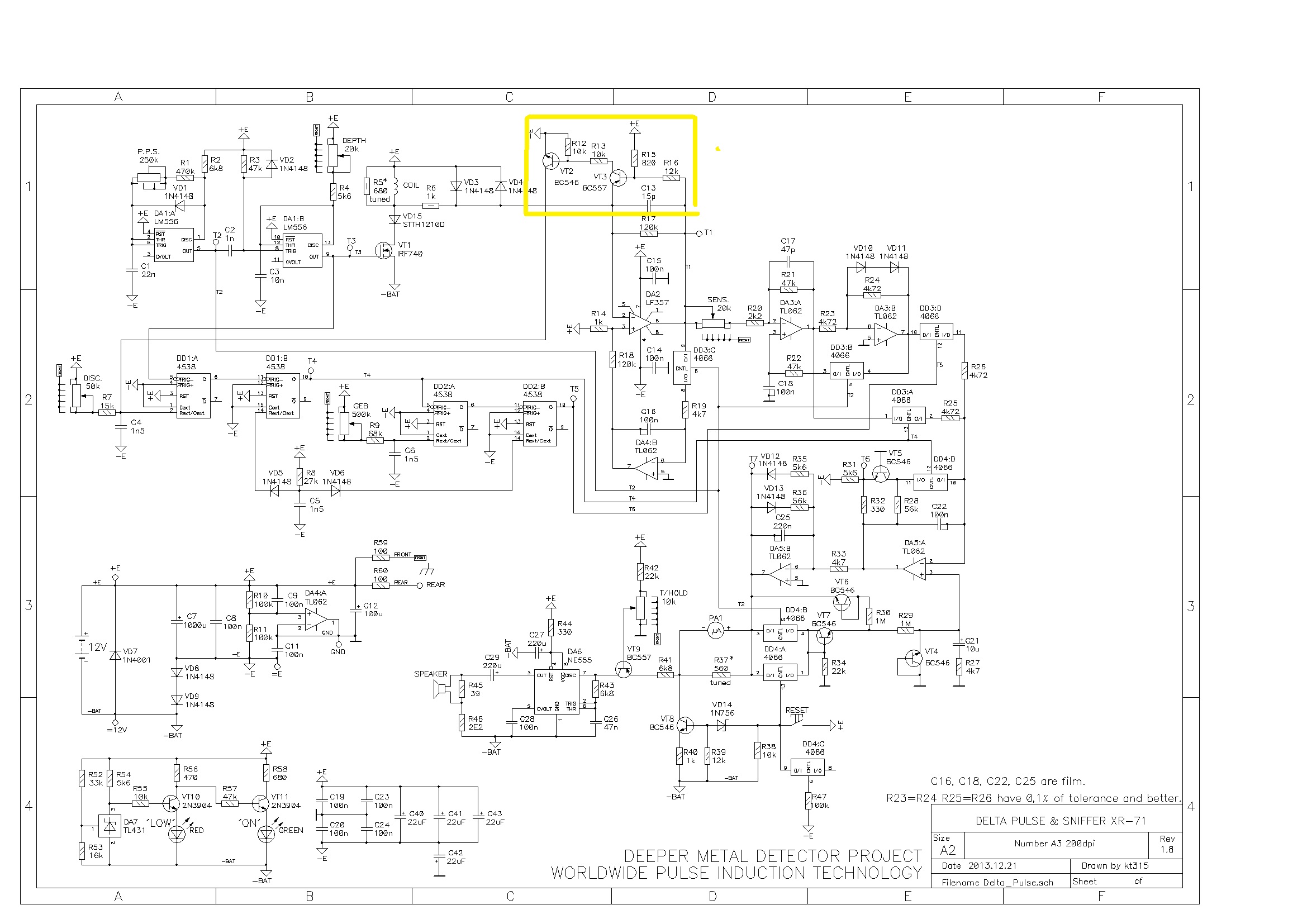
I do not know exactly.Originally posted by Silver Dollar View PostHey Guys I often wondered what the circuit framed in yellow does in this design?
Modify pulse width based on ground loading? Anyone know?
I learned that when a large metal, coil to approaches increases the delay, possibly to avoid overload.
In a modified DP for coins (decrease delay and increase in frequency), disconnect the collector VT2, to bypass this circuit.
By this I get softer the "delay" setting.
regards
Comment
-
had answered many times... something like a protection from overloading of amp part, on big target near coil. working such way. if a signal gains to some level this circuit turns on and moves out primary sample pulse in a range with more low amplitude - ie at right side of 'delta' pulse.
Comment



says this !
Comment